ASSATHIAN
Cafés, Hôtels, Restaurants
la solution pour la Grande Cuisine
Accueil
Références
Occasions
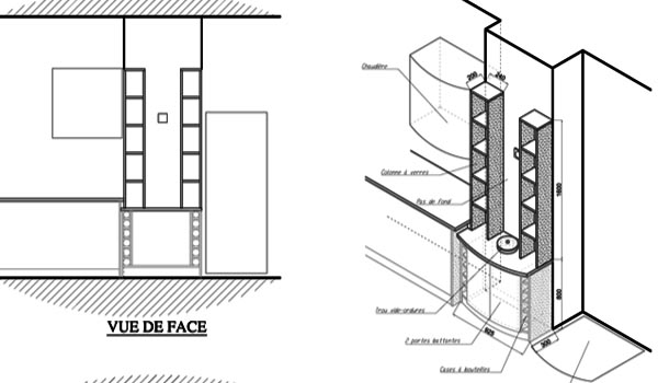
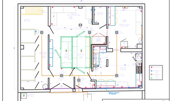
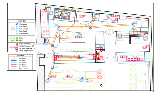
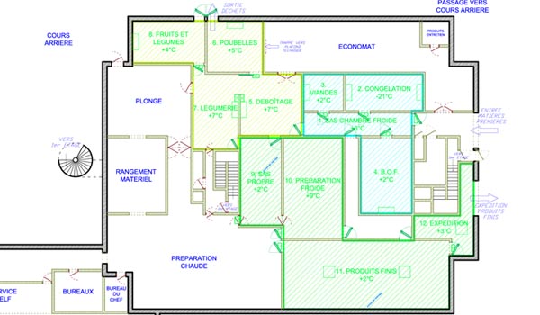
MOYENS & INSTALLATIONS :